30,000 Square Foot Office Space For Sale @ 2131 Industrial Rd
2131 Industrial Rd, Las Vegas, NV 89102
To view listing contacts please sign in with your Pro account or create a pro account.
Erik S.
Company: requires Pro account
Email: requires Pro account
Phone: requires Pro account
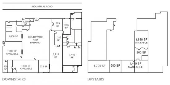
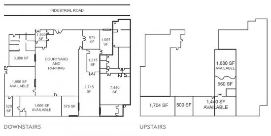
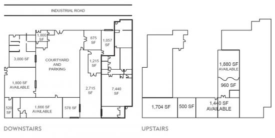
Creative Industrial Office Lofts For Sale. Complex is located minutes from the Las Vegas Strip, Down Town Las Vegas and the I-15 Freeway. Perfect for Owner Occupant or Investor. Building Offers 2 Story Office with Small Warehouse Units. Secure Fenced Parking Area.
Sales Info:
■ Commision split: 2.0%
Location Description:
This modern office/industrial building is located 0.5 Miles from the Las Vegas Strip and I-15 Freeway.
Highlights:
■ Creative Industrial Office Loft For Sale.
■ Two Story Building with Secured Courtyard.
■ Minutes From Down Town Las Vegas Redevelopment Zone, I-15 Freeway and Las Vegas Blvd.
■ Building Offers Large Call Center Area, Large Executive Offices, Small Warehouses and Studio Area.
■ Perfect for 1 Large Tenant or Several Smaller Tenants
■ Currently Rented to Several Tenants-Previous Tenant Occupied 100% of The Building.
■ Currently Occupied By Smaller Separate Tenants
■ 2 Secure Fenced Parking Areas
■ Complex Has a Fully Built Out 1,800+/-SF Restaurant Facing Industrial Rd.
■ Zoned M-1
* This property also has spaces available for lease.
Pricing: $3,300,000
Availability: Now
Listing ID: 422688
Sale Price: $3,300,000
Size: 30,000 square feet
Type: Office Space
Learn More:































































































