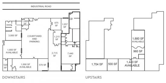
1,880 Square Foot Office Space For Lease @ 2131 Industrial Rd - 2121-2129 Industrial Rd.
2131 Industrial Rd, Las Vegas, NV 89102
To view listing contacts please sign in with your Pro account or create a pro account.
Erik S.
Company: requires Pro account
Email: requires Pro account
Phone: requires Pro account
Open Ceilings, Modern Loft Look, Second Story Suite, Pre-Wired Internet and Phone Lines. CAMs $0.39 which Includes Power and Water. Several Private Offices, Restroom and Reception Area.
Modern Loft Office/Warehouse Space. 2 Story Industrial Building was remolded into modern Loft Style Office Building. Secure Fenced Parking. Minutes from the I-15 Freeway and Las Vegas Strip. High Open Ceilings.
Lease Info:
■ Min divisible: 1,880 sf
■ Max contiguous: 1,880 sf
■ This property has 6 spaces available ranging from 960 sf to 30,000 sf.
Location Description:
This modern office/industrial building is located 0.5 Miles from the Las Vegas Strip and I-15 Freeway.
Highlights:
■ Quick Access to the Las Vegas Strip and I-15 Freeway. Modern open ceiling style office. Previous Call Center. Heavy Power and Data capability.
* This property is also for sale.
Pricing: $0.65/sqft
Availability: Now
Listing ID: 386890
Rate: $8 per sqft per year
Size: 1,880 square feet
Type: Office Space
Learn More:































































































