17,564 Square Foot Office Space For Sale @ 2626 Kotter Ave
2626 Kotter Ave, Evansville, IN 47715
To view listing contacts please sign in with your Pro account or create a pro account.
Steve M.
Company: requires Pro account
Email: requires Pro account
Phone: requires Pro account
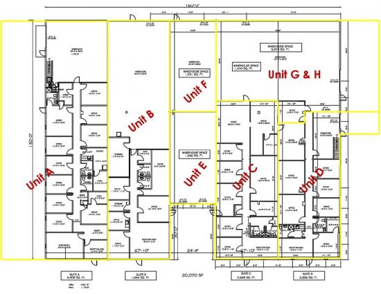
This is a 20,070 square foot pre-engineered steel structure that sits on approximately 2.65 acres. The exterior and roof are metal and the interior office finish is considered good quality for industrial office space. The facility is a mix of office and warehouse space. The building measures 160' x 130' with 18' eave height. The floor is 4" concrete reinforced slab. Total parking consists of approximately 27,000 square feet of drive and parking area. There is approx. 1 acre of secure fenced area on the west end of the property. The building was built with 4 distinct sections; therefore each section is also offered as a condo. Unit D condo has already been sold and is not included in the sale or price. This property would be great for an owner-user in Suite A or C who is also looking for income out of the property.
Sales Info:
■ Commision split: 50.0%
Location Description:
The property is located in an industrial park area on the east-side of Evansville just west of I-164 and has easy access to the east-side main arteries.
Highlights:
■ Easy access to I-164 & other main arteries
■ Excellent mix of office and warehouse space
■ Well Maintained and flexible space
■ Large fenced gravel yard
* This property also has spaces available for lease.
Pricing: $505,179
Availability: Now
Listing ID: 361456
Sale Price: $505,179
Size: 17,564 square feet
Type: Office Space
Learn More:




















