140 Square Foot Office Space For Lease @ 2626 Kotter Ave - Office A4
2626 Kotter Ave, Evansville, IN 47715
To view listing contacts please sign in with your Pro account or create a pro account.
Steve M.
Company: requires Pro account
Email: requires Pro account
Phone: requires Pro account
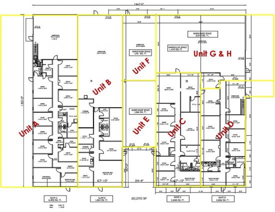
Office space includes a shared conference room, reception area, break-room/kitchen, and restrooms.
Currently available are: Suite A consisting of 3,239sf of office (10 offices, conference room, reception area restrooms and kitchen) and 1,170sf of warehouse. This space could also add part of the 1 acre fenced yard. Also available: Office Suite C consisting of 2,898 sf including 8 offices, 3 of which are large enough to be conference rooms, a reception area, kitchen, mens & womens restrooms. This is a 20,070 square foot pre-engineered steel structure that sits on approximately 2.65 acres. The exterior and roof are metal and the interior office finish is considered good quality for industrial office space. The facility is a mix of office and warehouse space. The building measures 160' x 130' with 18' eave height. The floor is 4" concrete reinforced slab. Total parking consists of approximately 27,000 square feet of drive and parking area. There is approx. 1 acre of secure fenced area on the west end of the property.
Lease Info:
■ This property has 13 spaces available ranging from 140 sf to 2,898 sf.
Location Description:
The property is located in an industrial park area on the east-side of Evansville just west of I-164 and has easy access to the east-side main arteries.
Highlights:
■ Easy access to I-164 & other main arteries
■ Excellent mix of office and warehouse space
■ Well Maintained and flexible space
■ Competitive rental rates
* This property is also for sale.
Pricing: $0.50/sqft
Availability: Now
Listing ID: 289065
Rate: $6 per sqft per year
Size: 140 square feet
Type: Office Space
Learn More:























