8,200 Square Foot Industrial Space For Lease @ 2665 Pine Grove Rd - Suite 100
2665 Pine Grove Rd, Cumming, GA 30041
To view listing contacts please sign in with your Pro account or create a pro account.
Scott H.
Company: requires Pro account
Email: requires Pro account
Phone: requires Pro account
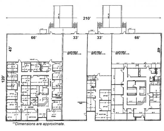
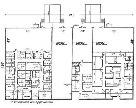
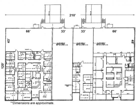
Brick office warehouse building with large truck court, space has dock high and drive in door. Above grade office build out. Leasing current owners space.
Location Description:
Close to Johns Creek, Alpharetta, Windward and GA 400. South Forsyth County. Class A Industrial Park.
Highlights:
■ 60% build out
■ Reception area, nine private offices, large open area, conference room and break room
■ Dock high door
■ Drive in door
■ Convenient to Windward and Johns Creek
■ South Forsyth County
■ Close to GA 400
* This property is also for sale.
Pricing: $0.75/sqft
Availability: Now
Listing ID: 719543
Office space(s): 5000
Ceiling height: 16.0
Column space: ---
Has sprinklers: No
Power: ---
Loading Zone:
• Grade level: 1
• Dock doors: 1
• Has rail access: No
Rate: $9 per sqft per year
Size: 8,200 square feet
Type: Industrial Space
Learn More:











