25,200 Square Foot Industrial Space For Sale @ 2665 Pine Grove Rd
2665 Pine Grove Rd, Cumming, GA 30041
To view listing contacts please sign in with your Pro account or create a pro account.
Scott H.
Company: requires Pro account
Email: requires Pro account
Phone: requires Pro account
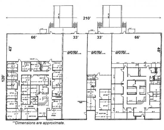
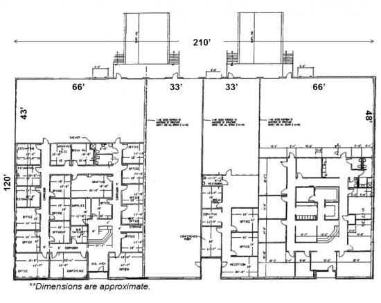
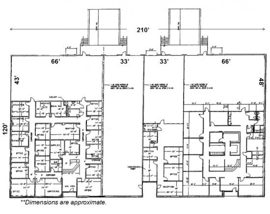
Brick office warehouse, all spaces have dock high and drive in doors, large truck court. Building designed for tenant. Currently one tenant occupies two spaces. Good for owner occupant.
Location Description:
Close to Johns Creek, Alpharetta, Windward and GA 400. South Forsyth County. Class A Industrial Park.
Highlights:
■ 8,200 square feet available
■ Owner/Investor building
■ Large truck court
■ Designed as four tenant building
■ Close to Windward on GA 400
■ Upgraded office buildout
* This property also has spaces available for lease.
Pricing: $2,500,000
Availability: Now
Listing ID: 719542
Office space(s): ---
Ceiling height: 16.0
Column space: ---
Has sprinklers: No
Power: ---
Loading Zone:
• Grade level: 4
• Dock doors: 4
• Has rail access: No
Sale Price: $2,500,000
Size: 25,200 square feet
Type: Industrial Space
Learn More:








