Land Available For Sale @ Lot 7 Valley Fair Commercial Development

Lot 7 Valley Fair Commercial Development, Appleton, WI 54915

To view listing contacts please sign in with your Pro account or create a pro account.

Chris W.

Company: requires Pro account

Email: requires Pro account

Phone: requires Pro account



Choose nearby businesses to show on the map:

Yelp

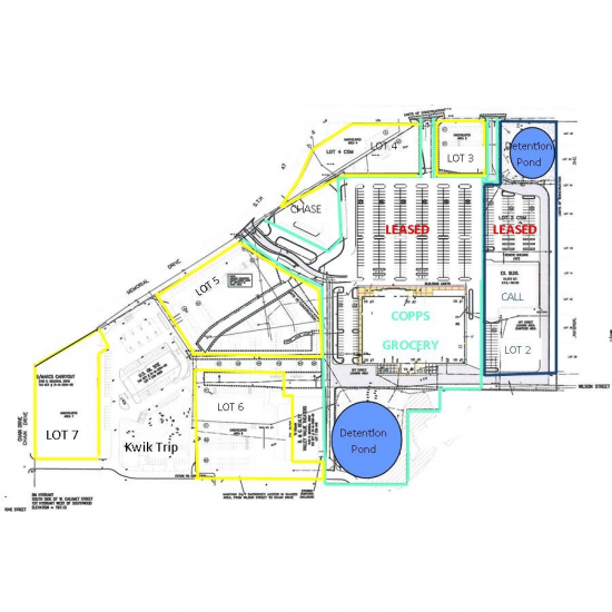
l.776 acres vacant land available. Other retailers in the development include Copps, Marcus Theaters, Express Convenience Center, & Chase Bank.

Listing company: Rollie Winter & Associates, Ltd.

Pricing: Contact for Pricing

Availability: Now

Listing ID: 508906


Save and Continue Browsing

Sale Price: $0

Size: 77,536 square feet

Type: Land

Learn More:

Company Name
Name of your company
Describe your location and space requirements
Enter additional requirements that you may have
Processing ...

We respect your privacy.

Get access to listing contacts with a Pro Account