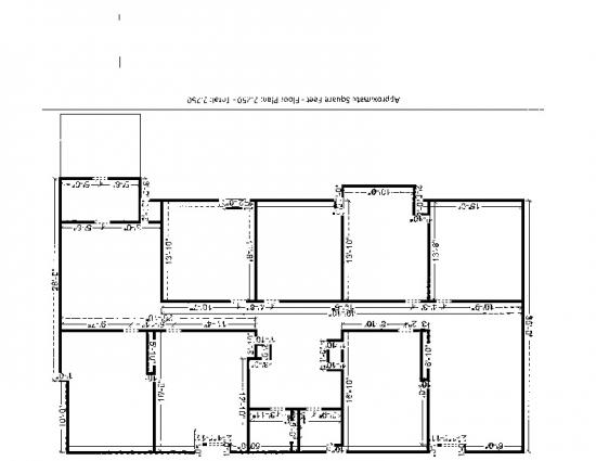
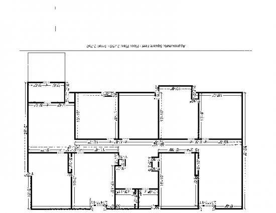
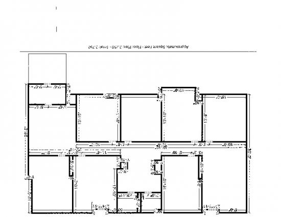
2,248 Square Foot Office Space For Sale @ 1800 Old Meadow Road
1800 Old Meadow Road, McLean, VA 22102
To view listing contacts please sign in with your Pro account or create a pro account.
Hourieh R.
Company: requires Pro account
Email: requires Pro account
Phone: requires Pro account
Rare Office Condo space in centrally located Tyson's Corner with easy access to Metro. 7 offices, small kitchenette, two entrance from the corridor and separate outside entrance. The Regency offers onsite services such as health club, convenience store and dry cleanser, as well as outdoor swimming pool. This unit comes with 7 reserved parking.
Sales Info:
■ Commision split: 3.0%
Location Description:
Located just five miles west of Washington DC, McLean blends elegant living with traditional hometown values. Midway between federal government seat in Washington, D.C. and the world gateway of Dulles International Airport, McLean is among the country's most vibrant and prosperous areas with Fortune 500 companies like the Big 6 Consulting Firms Capital One Financial and Freddie Mac, world famous shopping malls, Tyson's Corner and Tyson's Galleria, upscale restaurants like Ruth's Chris Steakhouse and the Capital Grill to Family -owned ethnic diners.
For more information click on the Link http://buildout.com/website/98147-sale
Highlights:
■ 2,248 sf
■ Seven Offices
■ Two Half Baths
■ Seven deeded Parking Space
■ 24 Hour Security
■ Near Tyson's Metro
Pricing: $627,192
Availability: Now
Listing ID: 705180
Sale Price: $627,192
Size: 2,248 square feet
Type: Office Space
Learn More:


















































