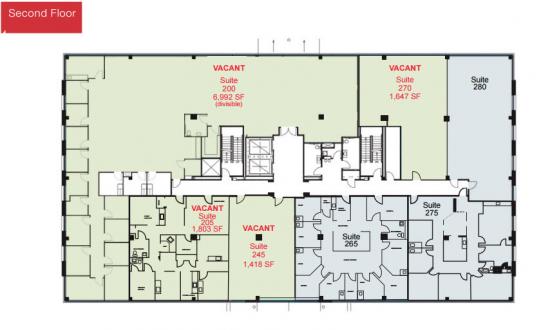
1,417 Square Foot Office Space For Lease @ 19450 Deerfield Ave - Lansdowne Medical Office Suite 245
19450 Deerfield Ave, Leesburg, VA 20176
To view listing contacts please sign in with your Pro account or create a pro account.
Kayvan M.
Company: requires Pro account
Email: requires Pro account
Phone: requires Pro account
Sperry Van Ness as the exclusive listing agent is happy to present this for Lease, Lansdowne Medical Office and Center. Located adjacent from the Inova Loudoun Hospital with access from Route 7 this Class A medical office building is ideally situated to serve the Leesburg community and surrounding areas.
Lease Info:
■ Min divisible: 1,417 SF
■ Max contiguous: 11,859 SF
■ This property has 11 spaces available ranging from 1,232 SF to 11,859 SF.
Location Description:
Located off of Route 7 directly adjacent from Inova Loudoun Hospital. Within 10 minutes of 267 and Leesburg Premium Outlets
Highlights:
■ Immediate Availability
■ Adjacent from Inova Loudoun Hospital
■ Covered patient drop-off
■ Handicap accessibility throughout
■ After-Hours Security
■ Ample Parking
Listing company: K & M Commercial Real Estate
Pricing: $2.33/sqft
Availability: Now
Listing ID: 799436
Rate: $28 per sqft per year
Size: 1,417 square feet
Type: Office Space
Learn More:











