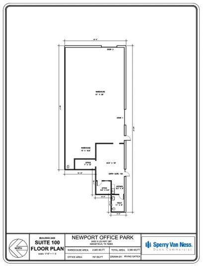
3,380 Square Foot Office Space For Lease @ 2421 Callender Rd - 2420 Hwy 287, 100
2421 Callender Rd, Mansfield, TX 76063
To view listing contacts please sign in with your Pro account or create a pro account.
David D.
Company: requires Pro account
Email: requires Pro account
Phone: requires Pro account
Approximately 3,000-4,000 sf of fenced outside storage/parking available with this space.
Freeway Signage, Abundant parking, Above Standard Landscaping,
Architecturally Appealing Design. Natural Stone Concrete Tilt Wall Construction, Built in 2006
Lease Info:
■ This property has 5 spaces available ranging from 729 sf to 3,380 sf.
Location Description:
High growth area, Easy access to Hwy 287, One of the fastest growing cities in Texas
Metro Market: Dallas/Ft Worth
Submarket: South Ft Worth Ind/Mansfield Ind
CBSA: Dallas-Fort Worth-Arlington, TX
DMA: Dallas-Ft Worth, TX
Pricing: $1.00/sqft
Availability: Now
Listing ID: 443169
Rate: $12 per sqft per year
Size: 3,380 square feet
Type: Office Space
Learn More:






















































