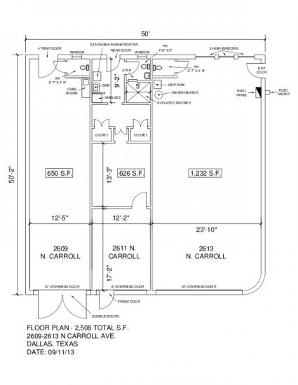
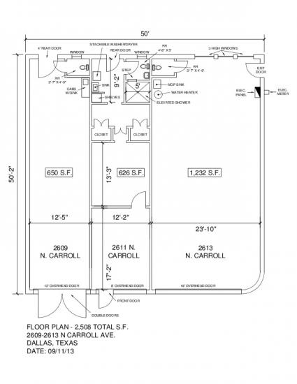
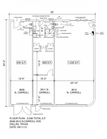
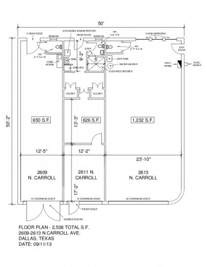
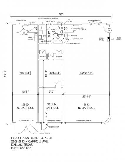
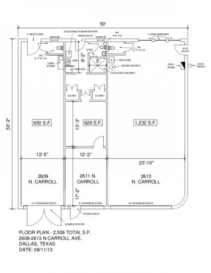
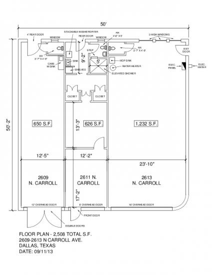
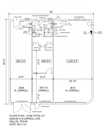
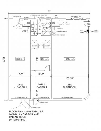
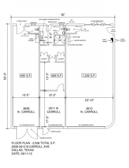
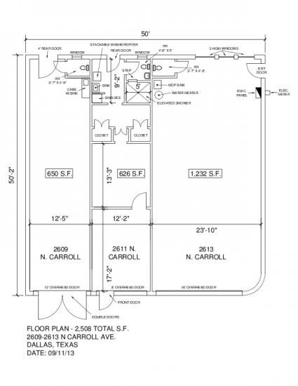
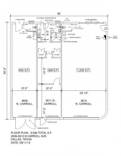
1,200 Square Foot Retail Space For Lease @ 2613 N Carroll Ave - 2613 North Carroll Avenue
2613 N Carroll Ave, Dallas, TX 75204
To view listing contacts please sign in with your Pro account or create a pro account.
Joe G.
Company: requires Pro account
Email: requires Pro account
Phone: requires Pro account
High Ceilings,immediately next door to Trammell Crow's East Village SAM's Project. Other tenants in the building are: Elite Chiropractic Pointe.
This Property, is undergoing remodeling. Tenant will have the ability to shape the appearance to suit their company's profile.
Lease Info:
■ Min divisible: 1,200 SF
■ Max contiguous: 1,800 SF
■ This property has 2 spaces available ranging from 600 SF to 1,800 SF.
Location Description:
The property is located in the North Eastern quadrant of Uptown Dallas, Texas. Located One Block North of Haskell and One Block East of North Central Expressway. This location affords this property local amenities such as Uptown and West Village shopping and restaurants, Citiplace Office Tower, Dart Rail Subway Station, Kroger, L.A. Fitness, Target, BuzzBrews Kitchen, Urbano Cafe, Jimmy's Italian Market and literally thousands of Class A Apartment communities built in the last 5 years in a 3 mile radius.
Highlights:
■ LOCATED IN BOOMING UPTOWN DALLAS
■ THOUSANDS OF CLASS A APARTMENT UNITS BEING BUILT IN A 2 MILE RADIUS
■ GREAT SINGLE OR MULTI TENANT BUILDING
■ HALF OF BUILDING AVAILABLE (1,250SF)
■ SECURED PARKING IN REAR
Rate: $25 per sqft per year
Size: 1,200 square feet
Type: Retail Space
Learn More:














































































