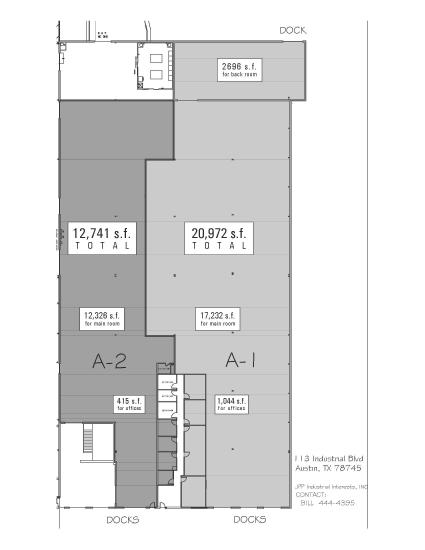
20,972 Square Foot Industrial Space For Lease @ 113 Industrial Blvd - A-1
113 Industrial Blvd, Austin, TX 78745
To view listing contacts please sign in with your Pro account or create a pro account.
Bill C.
Company: requires Pro account
Email: requires Pro account
Phone: requires Pro account
20,972 SF for Lease (Or, 14,061)
DOCK HIGH Loading Docks
Warehouse (19,928 SF)
Offices (1,044 SF) with AC
Total Space Options---34,847---20,972---17,767---15,963---12,741
Very low NNN of $0.08
Excellent for Distribution, Manufacturing, Light Industrial
TERM: One to Five Years
We Like Owner-Operated Businesses
3 minutes to IH 35
10 minutes to Downtown Austin
16 FT HIGH CEILINGS
PALLET RACK AVAILABLE for Purchase, ALREADY INSTALLED
35 Ft Column Spacing
Three Phase 208v Power, 200 Amps
Four Overhead Doors
Sprinkler System
Restrooms
113 Industrial Blvd. (one block south of Ben White)
Call Bill at 512-845-8801
Local Business Owners--Call me, I'll work with you!
Office space(s): 1,044
Ceiling height: 16
Column space: 35
Has sprinklers: Yes
Power: 208V, Three Phase
Loading Zone:
• Dock doors: 3
• Has rail access: No
Downloadable Documents:
Rate: Contact for price
Size: 20,972 square feet
Type: Industrial Space
Learn More:


