9,158 Square Foot Office Space For Sale @ 19 Executive Park Rd
19 Executive Park Rd, Hilton Head Island, SC 29928
To view listing contacts please sign in with your Pro account or create a pro account.
Vonnie M.
Company: requires Pro account
Email: requires Pro account
Phone: requires Pro account
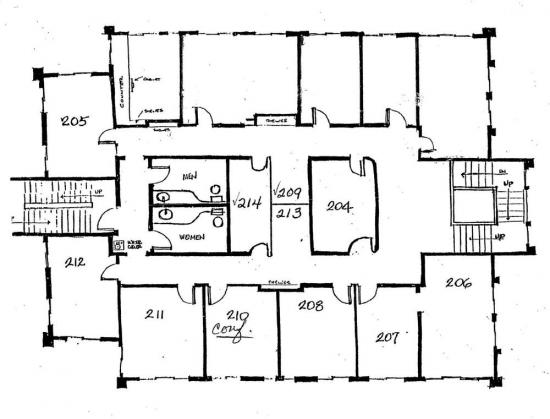
Available for sale or lease is this prime office building on Hilton Head Island. The entire building is 9,158 square feet, with the 1st and 2nd floor consisting of beautiful office space - large perimeter offices, several conference rooms, work rooms, kitchen - and a finished 3rd floor ideal for storage. Access to floors is provided by two stairwells and there is a concrete vault for records storage. The building construction is steel frame with stucco on reinforced concrete, has an asphalt-shingled roof, double-paned windows and the HVAC is electric heat pump. The property was most recently occupied by single user, but the very functional layout could be subdivided to accommodate smaller users if needed. Sales price just recently reduced from $801,400. Price is well below replacement cost! Building is also available for Lease.
Location Description:
Situated on approximately 0.5-acre level lot, the property offers dedicated surface parking and lush landscaping with mature live oaks, pines and shrubs. It is located in the South end of Hilton Head Island, and is less than 1 mile from the Highway 278/William Hilton Parkway and Palmetto Bay Road intersection. The site has good access from Pope Avenue and 110' frontage on Executive Park Road.
Highlights:
■ Priced Well Below Replacement Cost
■ 9,158 SF on 0.5 Acres Lot; Dedicated Parking.
■ 3-Story Building; Beautiful Space & Layout
■ Good Access; 110' Frontage on Executive Park Road
■ Less than 1 Mile from Hwy. 278 & Palmetto Bay Road
Pricing: $695,000
Availability: Now
Listing ID: 288377
Sale Price: $695,000
Size: 9,158 square feet
Type: Office Space
Learn More:















