Land Available For Lease @ 140 Wilson Rd

140 Wilson Rd, Sparrow Bush, NY 12780

To view listing contacts please sign in with your Pro account or create a pro account.

Joseph D.

Company: requires Pro account

Email: requires Pro account

Phone: requires Pro account



Choose nearby businesses to show on the map:

Yelp

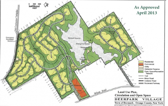
1518 approved units for 55+ detached single family homes. This space offers accomodations for: multifamily.

Pricing: Negotiable

Availability: Now

Listing ID: 1440195


Save and Continue Browsing

Rate: Contact for price

Type: Land

Learn More:

Company Name
Name of your company
Describe your location and space requirements
Enter additional requirements that you may have
Processing ...

We respect your privacy.

Get access to listing contacts with a Pro Account