2,000 Square Foot Office Space For Lease @ 529 W 20th St

529 W 20th St, New York, NY 10011

To view listing contacts please sign in with your Pro account or create a pro account.

Myles R.

Company: requires Pro account

Email: requires Pro account

Phone: requires Pro account



Choose nearby businesses to show on the map:

Yelp

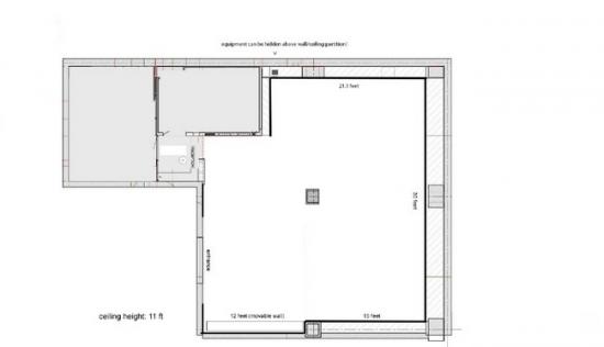
Chelsea’s most visited building for art galleries. Finished gallery space, high ceilings, HVAC in premises, 24-hour access, ready to move in condition.

Listing company: Oxford Property Group

Pricing: $3.00/sqft

Availability: Now

Listing ID: 926521


Save and Continue Browsing

Rate: $36 per sqft per year

Size: 2,000 square feet

Type: Office Space

Learn More:

Company Name
Name of your company
Describe your location and space requirements
Enter additional requirements that you may have
Processing ...

We respect your privacy.

Get access to listing contacts with a Pro Account