2,140 Square Foot Retail Space For Lease @ 228 Thompson St - LL
228 Thompson St, New York, NY 10012
To view listing contacts please sign in with your Pro account or create a pro account.
Thomas P.
Company: requires Pro account
Email: requires Pro account
Phone: requires Pro account
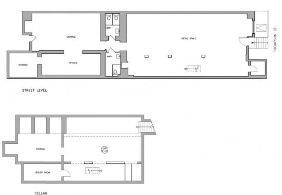
Former restaurant space on Thompson street in West Village for Lease!
Huge 2,140 sq/ft of Ground Floor Space and 1,175 sq/ft of cellar space will make a great setting for your new business venture. This Prime area in the west village is perfectly suited for a modern-eclectic dining venue, trendy upscale bar or funky-cool lounge concept.
Landlord would also consider any general retail use....or clothing store, salon or boutique etc... All reasonable uses will be considered as long as there right fit for this area.
Nice exposed venue with 19' frontage on Thompson Street, nice ceiling height of 8' in the main ground floor area. The cellar downstairs boasts a ceiling height of 7'.
Call or Text Tommy at 646-397-7115 to set up a private showing. (Commercial Leasing Director @ Miyad Realty)
Metro NY Properties
www.MetroNYProperties.com
Metro NY Properties Listing ID#:
Rate: $25,000 per month
Size: 2,140 square feet
Type: Retail Space
Learn More:






