176,000 Square Foot Industrial Space For Lease @ 17 Midland Ave Ext - 17 Midland Ave Ext, Middletown, Ny 10940
17 Midland Ave Ext, Middletown, NY 10940
To view listing contacts please sign in with your Pro account or create a pro account.
Matthew G.
Company: requires Pro account
Email: requires Pro account
Phone: requires Pro account
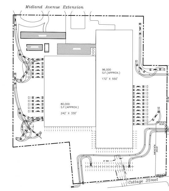
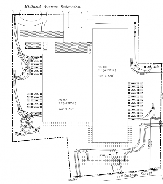
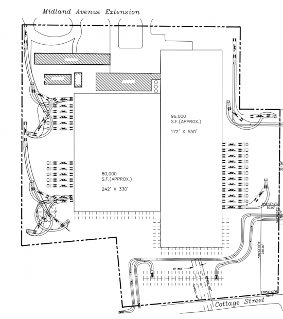
Proposed warehouse (up to) 176,000 square feet available for lease. Subject building is to be built and ownership is willing to build to suit. Flexibility in the design will allow options from 20,000 to 176,000 square feet. The building can be delivered with up to 40 foot ceilings. There is also potential for an additional 90,000 square feet adjacent to this site. The subject property is located in Middletown's I-2 zone which allows for a wide variety of uses including but not limited to, distribution, storage & warehouse, manufacturing, and film production facilities. For a full list of permitted uses, please see attached zoning. On-site utilities include water, sewer, natural gas, and power up to 3 mega watts. The freight rail line is adjacent to the property and a rail spur previously existed on the site. Ownership anticipates having full approvals within 60 days. This space offers accomodations for: manufacturing.
Pricing: $0.67/sqft
Availability: Now
Listing ID: 3165531
Office space(s): ---
Ceiling height: ---
Column space: ---
Has sprinklers: No
Power: ---
Loading Zone:
• Has rail access: No
Rate: $8 per sqft per year
Size: 176,000 square feet
Type: Industrial Space
Learn More:


