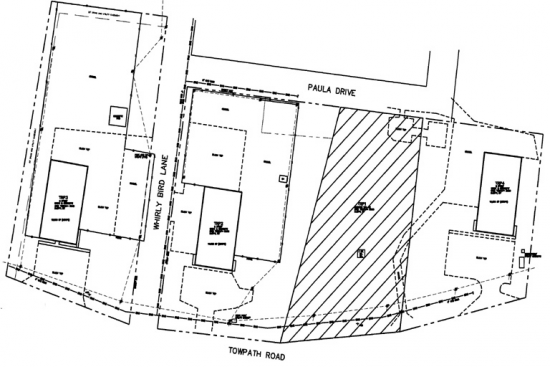
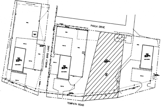
Land Available For Lease @ 6561 Towpath Rd

6561 Towpath Rd, East Syracuse, NY 13057

To view listing contacts please sign in with your Pro account or create a pro account.

John C.Recommended Pro

Company: requires Pro account

Email: requires Pro account

Phone: requires Pro account



Choose nearby businesses to show on the map:

Yelp

Land lease at $25,000 per year for 10-20 years. Proposed 20,000 SF building.

Listing company: Cushman & Wakefield Pyramid Brokerage Company

Pricing: Negotiable

Availability: Now

Listing ID: 1065974


Save and Continue Browsing

Rate: Contact for price

Size: 1 square feet

Type: Land

Learn More:

Company Name
Name of your company
Describe your location and space requirements
Enter additional requirements that you may have
Processing ...

We respect your privacy.

Get access to listing contacts with a Pro Account