Land Available For Lease @ Marcel Court

Marcel Court, Cornwall, NY 12518

To view listing contacts please sign in with your Pro account or create a pro account.

Robert "Bob" D.

Company: requires Pro account

Email: requires Pro account

Phone: requires Pro account



Choose nearby businesses to show on the map:

Yelp

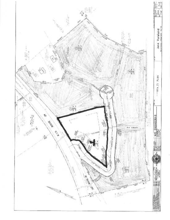
The lots have beautiful mountain views, located in the Cornwall School District. Survey/Map for Subdivision plan, road profile, realty plan and septic design notes are available. This space offers accomodations for: residential.

Pricing: Negotiable

Availability: Now

Listing ID: 3324265


Save and Continue Browsing

Rate: Contact for price

Type: Land

Learn More:

Company Name
Name of your company
Describe your location and space requirements
Enter additional requirements that you may have
Processing ...

We respect your privacy.

Get access to listing contacts with a Pro Account