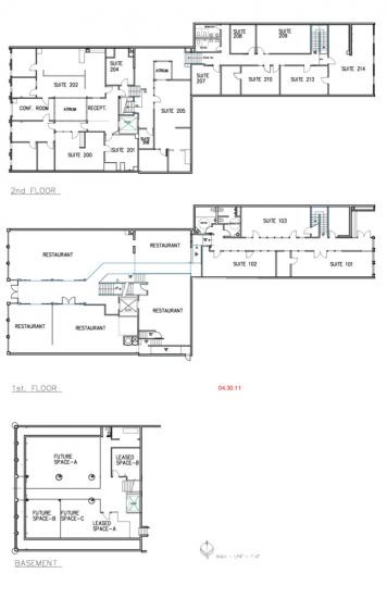
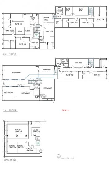
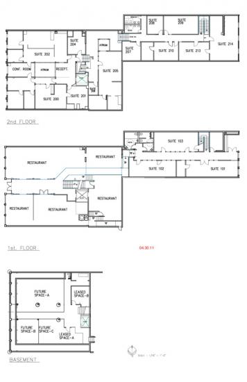
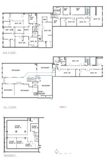
3,553 Square Foot Office Space For Lease @ 318 N Carson St - Suite 200
318 N Carson St, Carson City, NV 89701
To view listing contacts please sign in with your Pro account or create a pro account.
Thomas Y.
Company: requires Pro account
Email: requires Pro account
Phone: requires Pro account
3090 useable sq. ft./3553 rentable sq. ft.
Office Space for Lease
Lease Info:
■ This property has 5 spaces available ranging from 421 SF to 4,059 SF.
Location Description:
Excellent location in Downtown Carson City, near the State Capitol, Secretary of State Offices, Legislature, City Hall and Federal Offices. In addition to the nearby State and local government offices, Carson City's downtown is also home to a variety of professionals, retailers and restaurants.
Pricing: $1.35/sqft
Availability: Now
Listing ID: 620057
Rate: $16 per sqft per year
Size: 3,553 square feet
Type: Office Space
Learn More:


















