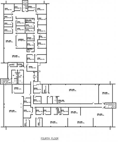
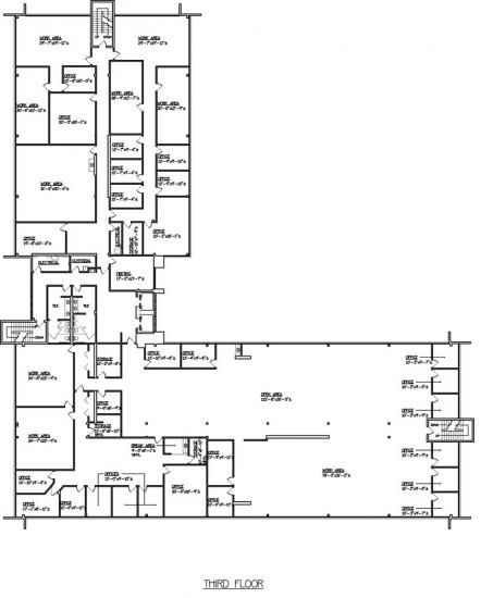
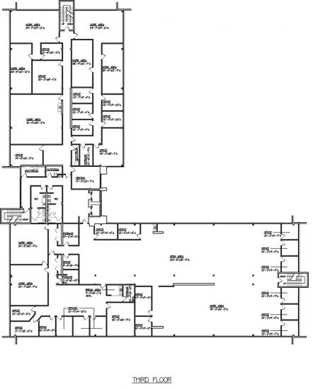
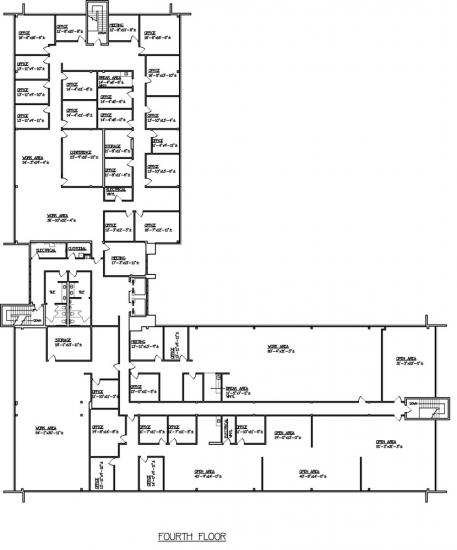
72,977 Square Foot Office Space For Sale @ 2501 Buena Vista Dr Se
2501 Buena Vista Dr SE, Albuquerque, NM 87106
To view listing contacts please sign in with your Pro account or create a pro account.
Hunter G.
Company: requires Pro account
Email: requires Pro account
Phone: requires Pro account
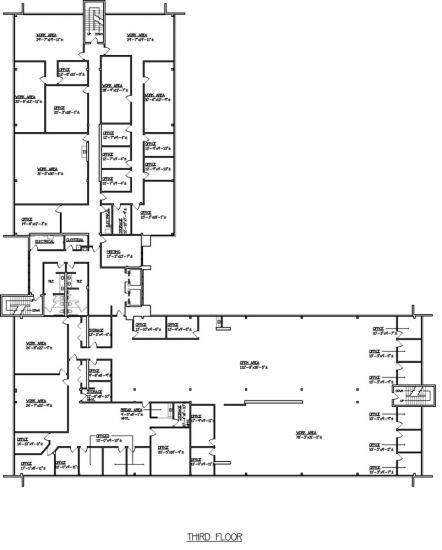
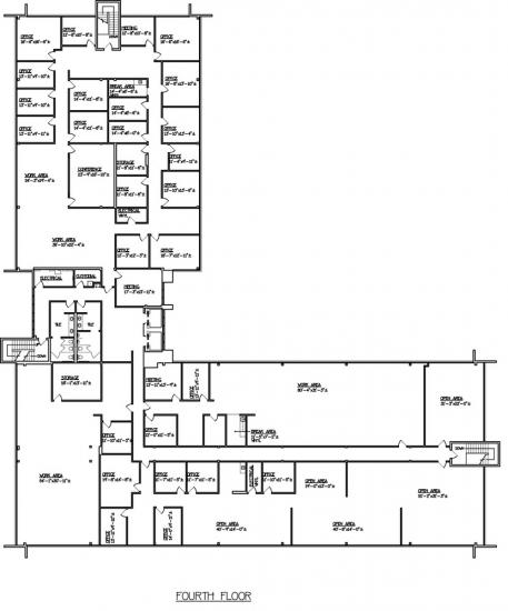
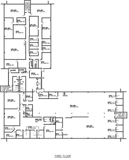
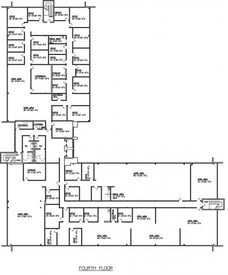
Built in 1983, this property has been institutionally owned and maintained for the past 15 years. The property was renovated in 1998 and features a new roof in 2012 and large floorplates with open areas ideal for landscape furniture. High-speed broadband fiber connectivity is available throughout the complex.
Sales Info:
■ Commision split: 3.0%
Location Description:
Randolph & Buena Vista
Highlights:
■ Business Park Environment – Campus Setting
■ Abundant Parking
■ High-Identity Corner Location
■ 2 Elevators
■ Public Transportation on Randolph
■ Adjacent to ABQ International Sunport
■ Offered at 16% of Replacement Cost
* This property also has spaces available for lease.
Pricing: $2,270,000
Availability: Now
Listing ID: 706727
Sale Price: $2,270,000
Size: 72,977 square feet
Type: Office Space
Learn More:



















































