8,000 Square Foot Industrial Space For Lease @ 30 Harvey Rd - 6
30 Harvey Rd, Bedford, NH 03110
To view listing contacts please sign in with your Pro account or create a pro account.
Dan S.
Company: requires Pro account
Email: requires Pro account
Phone: requires Pro account
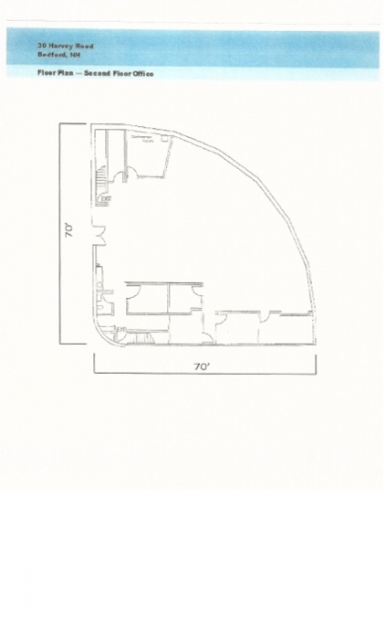
The 10,000 SF consist of 4,000 SF of Industrial /Warehouse space and 4,000 SF of adjoining office space. The office area as currently configured consist of 7 hard walled offices, 2 hard walled conference rooms, a hard walled kitchen/break area, reception area and open work space.
Three phase power in the shop/warehouse area. This space offers accomodations for: industrialbusiness park.
Pricing: $0.71/sqft
Availability: Now
Listing ID: 1016590
Office space(s): ---
Ceiling height: ---
Column space: ---
Has sprinklers: No
Power: ---
Loading Zone:
• Has rail access: No
Rate: $9 per sqft per year
Size: 8,000 square feet (is divisible)
Type: Industrial Space
Learn More:



