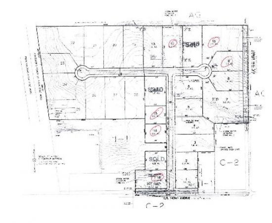
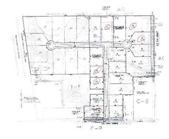
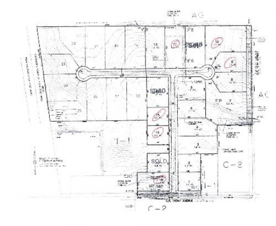
Land Available For Sale @ 4213-4217 Morren Ln.

4213-4217 Morren Ln., Wayland, MI 49348

To view listing contacts please sign in with your Pro account or create a pro account.

John O.

Company: requires Pro account

Email: requires Pro account

Phone: requires Pro account



Choose nearby businesses to show on the map:

Yelp

TERMS: Cash

Listing company: First Companies, Inc.

Pricing: Contact for Pricing

Availability: Now

Listing ID: 696203


Save and Continue Browsing

Sale Price: $0

Size: 143,748 square feet

Type: Land

Learn More:

Company Name
Name of your company
Describe your location and space requirements
Enter additional requirements that you may have
Processing ...

We respect your privacy.

Get access to listing contacts with a Pro Account