Land Available For Sale @ 1585 Business Park Dr

1585 Business Park Dr, Traverse City, MI 49686

To view listing contacts please sign in with your Pro account or create a pro account.

Rick R. D.

Company: requires Pro account

Email: requires Pro account

Phone: requires Pro account



Choose nearby businesses to show on the map:

Yelp

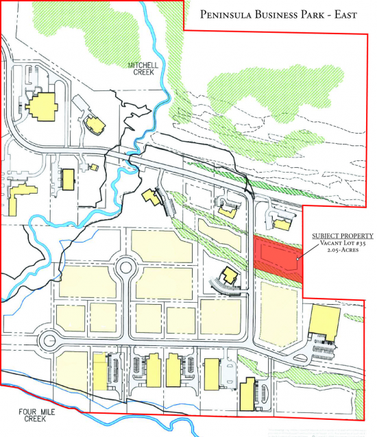
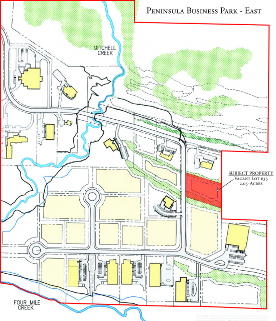
2.05 Acres located in beautiful office park off Three Mile Rd., 1.4 miles from US-131. For more information contact Andrew Gyorkos at 269-760-5201 or Rick DeKam at 269-207-5430.

Listing company: Midwest Realty Group, L.L.C.

Pricing: Contact for Pricing

Availability: Now

Listing ID: 756383


Save and Continue Browsing

Sale Price: $0

Size: 89,297 square feet

Type: Land

Learn More:

Company Name
Name of your company
Describe your location and space requirements
Enter additional requirements that you may have
Processing ...

We respect your privacy.

Get access to listing contacts with a Pro Account