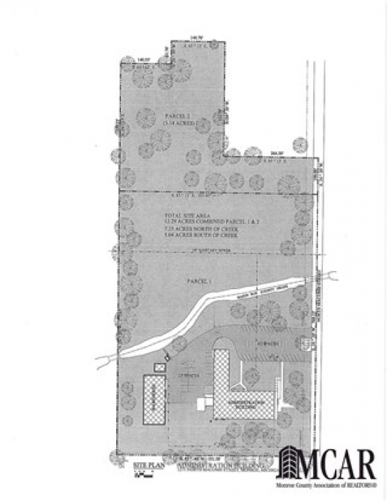
Land Available For Sale @ 1275 N Macomb St

1275 N Macomb St, Monroe, MI 48162

To view listing contacts please sign in with your Pro account or create a pro account.

Matt K.

Company: requires Pro account

Email: requires Pro account

Phone: requires Pro account



Choose nearby businesses to show on the map:

Yelp

Development site located just north of the Promedica Hospital. Adjacent to the north of Monroe Public Schools Administration Building. Taxes have not been determined.

Listing company: CBC Corporate

Pricing: $700,000

Availability: Now

Listing ID: 1119269


Save and Continue Browsing

Sale Price: $700,000

Type: Land

Learn More:

Company Name
Name of your company
Describe your location and space requirements
Enter additional requirements that you may have
Processing ...

We respect your privacy.

Get access to listing contacts with a Pro Account