Land Available For Sale @ 3993 W Shore Dr

3993 W Shore Dr, Holland, MI 49424

To view listing contacts please sign in with your Pro account or create a pro account.

Jeff L.

Company: requires Pro account

Email: requires Pro account

Phone: requires Pro account



Choose nearby businesses to show on the map:

Yelp

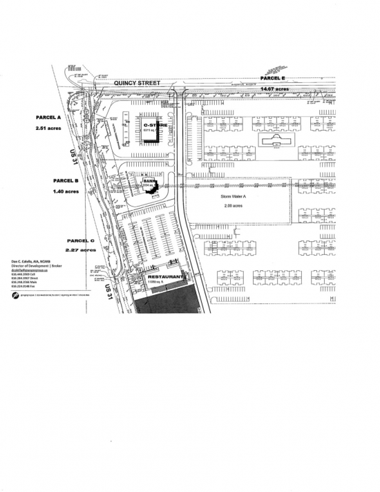
Gas/C-Store Site at corner of US-31 and Quincy
Approximately 30,000 daily vehicle count
Part of new Quincy Market Place Development
W Shore Drive to be extended from Greenly to Quincy

Listing company: Granger Group Property Sales

Pricing: Contact for Pricing

Availability: Now

Listing ID: 1042901


Save and Continue Browsing

Sale Price: $0

Size: 91,476 square feet

Type: Land

Learn More:

Company Name
Name of your company
Describe your location and space requirements
Enter additional requirements that you may have
Processing ...

We respect your privacy.

Get access to listing contacts with a Pro Account