Land Available For Sale @ 5046 E Beltline Ave Ne

5046 E Beltline Ave NE, Grand Rapids, MI 49525

To view listing contacts please sign in with your Pro account or create a pro account.

Michael J. M.

Company: requires Pro account

Email: requires Pro account

Phone: requires Pro account



Choose nearby businesses to show on the map:

Yelp

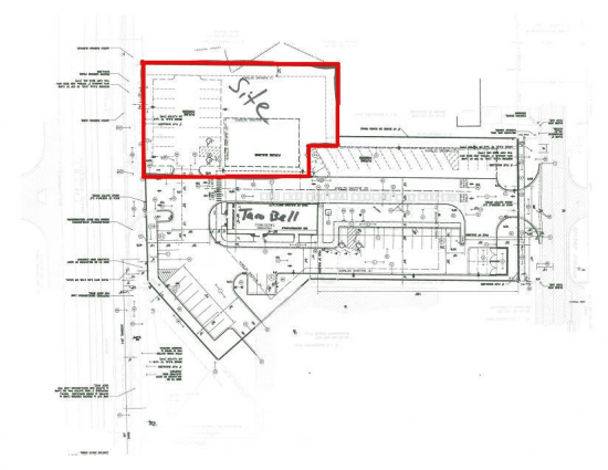
Excellent opportunity for a retail site on the East Beltline at the Northland Drive/Plainfield intersection next to Taco Bell and Arby`s.

Listing company: Colliers International

Pricing: Contact for Pricing

Availability: Now

Listing ID: 1047136


Save and Continue Browsing

Sale Price: $0

Size: 32,670 square feet

Type: Land

Learn More:

Company Name
Name of your company
Describe your location and space requirements
Enter additional requirements that you may have
Processing ...

We respect your privacy.

Get access to listing contacts with a Pro Account