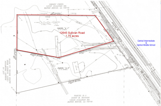
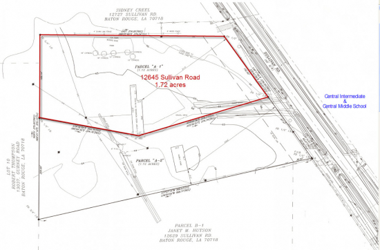
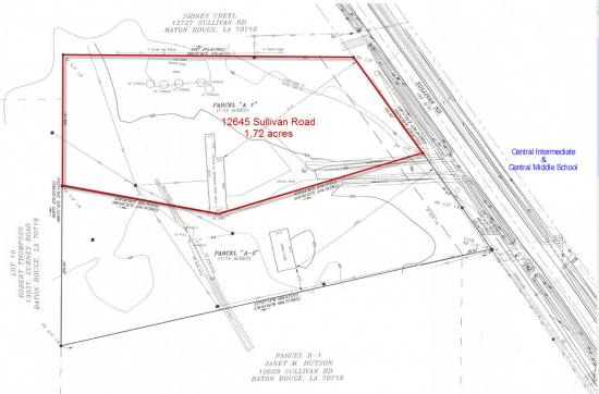
Land Available For Sale @ 12645 Sullivan Rd
12645 Sullivan Rd, Baton Rouge, LA 70818
To view listing contacts please sign in with your Pro account or create a pro account.
Jonathan S.
Company: requires Pro account
Email: requires Pro account
Phone: requires Pro account
This property is being sold with the adjacent property of 1.72 acres for a total of 3.74 acres. Total asking price is $998,000. Property is currently classified as medium residential in the proposed Central City Master Plan. Most favorable use will be a PUD. The home on the property is given no value for future use. On both properties the intended sale is land only.
Listing company: Bhhs United Properties
Pricing: Contact for Pricing
Availability: Now
Listing ID: 166416
Sale Price: $0
Size: 149,846 square feet (is divisible)
Type: Land
Learn More:



