Land Available For Sale @ 11800 Hooper Rd

11800 Hooper Rd, Baton Rouge, LA 70818

To view listing contacts please sign in with your Pro account or create a pro account.

Walt H K.

Company: requires Pro account

Email: requires Pro account

Phone: requires Pro account



Choose nearby businesses to show on the map:

Yelp

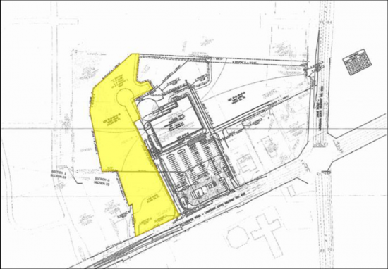
Vacant land located adjacent to the Walmart Neighborhood Market that is under construction on Hooper Rd. near Joor. Various land splits available. Asking $22 PSF for the hard corner and $12 PSF for the remaining land.

Listing company: NAI/Latter & Blum Commercial New Orleans

Pricing: Contact for Pricing

Availability: Now

Listing ID: 780363


Save and Continue Browsing

Sale Price: $0

Size: 47,250 square feet

Type: Land

Learn More:

Company Name
Name of your company
Describe your location and space requirements
Enter additional requirements that you may have
Processing ...

We respect your privacy.

Get access to listing contacts with a Pro Account