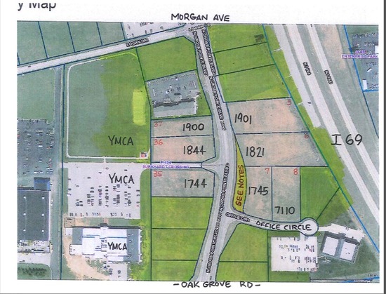
Land Available For Sale @ 7110 Office Circle

7110 Office Circle, Evansville, IN 47715

To view listing contacts please sign in with your Pro account or create a pro account.

Joe K.

Company: requires Pro account

Email: requires Pro account

Phone: requires Pro account



Choose nearby businesses to show on the map:

Yelp

Located near I 164 (I 69) on Eastside of Evansville and Newburgh, IN. These lots have great visibility with high traffic volume. Nearby is the YMCA, restaurants, bank and other professional offices.

Assessed Value: $1,800
Taxes: $57

Listing company: Woodward Commercial Realty, Inc.

Pricing: Contact for Pricing

Availability: Now

Listing ID: 548622


Save and Continue Browsing

Sale Price: $0

Size: 44,866 square feet

Type: Land

Learn More:

Company Name
Name of your company
Describe your location and space requirements
Enter additional requirements that you may have
Processing ...

We respect your privacy.

Get access to listing contacts with a Pro Account