42,203 Square Foot Multi-Family Space For Sale @ 1210 Vista Ct
1210 Vista Ct, Evansville, IN 47710
To view listing contacts please sign in with your Pro account or create a pro account.
Steve M.
Company: requires Pro account
Email: requires Pro account
Phone: requires Pro account
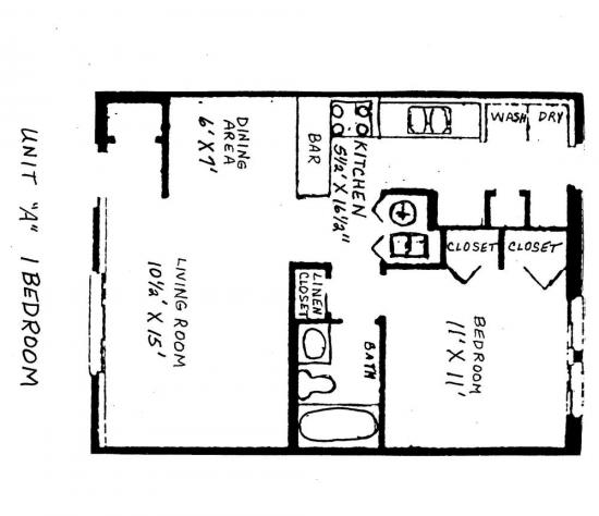
The Buena Vista apartment community consists of 50 units located on the North side of Evansville, Indiana. The property was rehabbed in 1987 under the Section 42 Low Income Housing Credit Program, and finished it's obligation to the program at the end of 2002.
10 of the property's 50 units operate under a Project Based Section 8 which was renewed for 20 years. A buyer has the opportunity to add significant value to this property by operating the deal as market rate housing. This property has always operated under 236 but recently paid off that mortgage. The property is in process of being released from the HUD regulatory agreement from 236. As part of the Prepayment Request, the property is currently under consideration to receive 40 Section 8 tenant vouchers, which can be utilized at this property or an alternative if tenant wishes.
The Principal Broker of Sperry Van Ness/ Martin Commercial Group is the General Partner of Buena Vista Apartments. The seller is also a licensed broker in the state of Indiana.
Sales Info:
■ Commision split: 2.5%
Location Description:
Buena Vista is a 50 unit stick build Class C property constructed in 1976. The property is situated on a 3.69 acre site just west of First Avenue in Evansville, IN. The property is located a quarter mile east of the Target Center and Schnuck's Supermarket. Additional retailers and several national restaurant chains are located near by in the North Park and Northbrook Shopping Centers. The property is located in the Tompkins Middle School and Central High School school districts. Also close by are Holy Redeemer School and Mater Dei High School.
Highlights:
■ Value-added opportunity
■ Well positioned within sub-market
■ Located near Northbrook and North Park retail centers with national retailers and restaurants
■ Within walking distance of Ivy Tech Community College
Pricing: $1,170,000
Availability: Now
Listing ID: 479884
Sale Price: $1,170,000
Size: 42,203 square feet
Type: Multi-Family Space
Learn More:
















