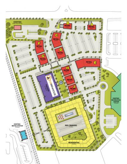
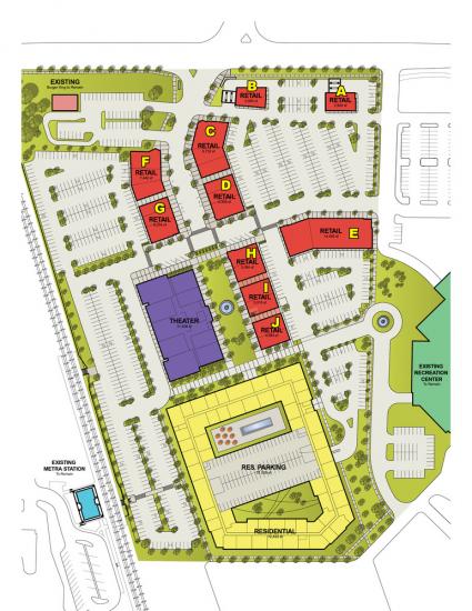
16,385 Square Foot Retail Space For Lease @ 351 W Dundee Rd - Building HIJ
351 W Dundee Rd, Wheeling, IL 60090
To view listing contacts please sign in with your Pro account or create a pro account.
Wayne C.
Company: requires Pro account
Email: requires Pro account
Phone: requires Pro account
2nd Floor Loft/Office Space on Village Greenway
Join Flix Brewhouse Cinemas at Wheeling Town Center!!! New construction, transit oriented lifestyle retail development at the Wheeling Metra Station, anchored by a 288 unit luxury rental apartment building. Small shop, outlot, and mid box opportunities available. Tenant mix to include theater, full service restaurants, casual dining, daily necessities and services. Huge parking field. Part of Wheeling Master Plan. Developed by Urban R2. Designed by RTKL Architects. Opening in 2016.
Lease Info:
■ Min divisible: 1,200 sf
■ Max contiguous: 16,385 sf
■ This property has 13 spaces available ranging from 1,200 sf to 31,003 sf.
Location Description:
The development is located on heavily trafficked Dundee Road and the Wheeling Metra Station, just west of Milwaukee Ave. Dundee Road has a huge daily traffic count of nearly 40,000 vehicles per day. The property is also adjacent to the Village of Wheeling Park District, Acquatic Center, Heritage Park, and Village Hall.
Highlights:
■ 118,000 SF Retail / Office Space at Wheeling Metra Station
■ Theater Co-tenancy
■ Regional Trade Area
■ Anchored by 288 Unit Luxury Apt Building
■ Nearly 40,000 VPD Traffic Count on Dundee Rd.
Pricing: $1.83/sqft
Availability: Now
Listing ID: 387642
Rate: $22 per sqft per year
Size: 16,385 square feet
Type: Retail Space
Learn More:




















































