4,385 Square Foot Retail Space For Lease @ 5820 N Clark St
5820 N Clark St, Chicago, IL 60660
To view listing contacts please sign in with your Pro account or create a pro account.
Andersonville C.
Company: requires Pro account
Email: requires Pro account
Phone: requires Pro account
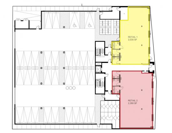
4,385 square feet of brand new retail space in Chicago’s Andersonville neighborhood. The north and south spaces are 2,035 square feet and 2,350 square feet respectively. Great storefront detail including floor-to-ceiling, butt joint glazed glass, 11'4" ceiling heights, handicap access and men's and women's washrooms. Property is zoned B3-2, allowing for a wide variety of business uses.
Prime Andersonville/Edgewater retail directly across from the Gesthemene Garden Center. Directly north of MCZ's 142 unit planned redevelopment of the former Edgewater hospital, the adjoining 15 single family home site now underway and a new one acre park. This location is ideal for uses such as home furnishing businesses, office or cafes.
Please contact Sara Dinges at 773-728-2995 ext.105 or sdinges@andersonville.org for more information. This space offers accomodations for: andersonville, commercial, office, retail.
Rate: Contact for price
Size: 4,385 square feet (is divisible)
Type: Retail Space


