3,628 Square Foot Retail Space For Lease @ 5009 N Sheridan Rd - 5009 N Sheridan Road
5009 N Sheridan Rd, Chicago, IL 60640
To view listing contacts please sign in with your Pro account or create a pro account.
Tim R.
Company: requires Pro account
Email: requires Pro account
Phone: requires Pro account
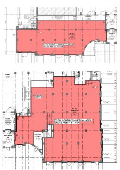
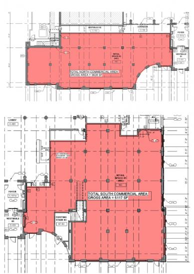
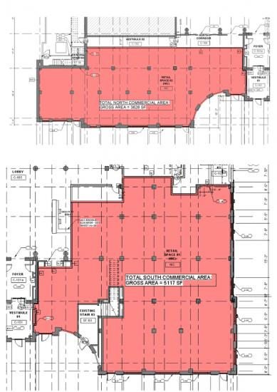
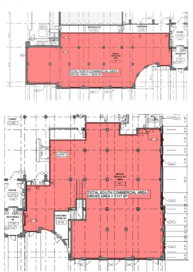
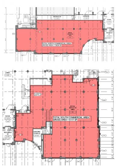
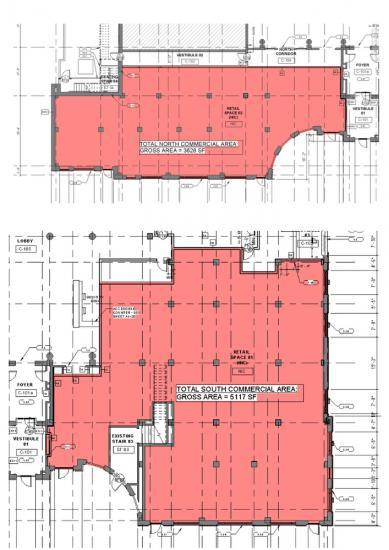
North Retail Space
900-3628 SF
Divisible to Many Configurations
SVN Chicago is pleased to offer for lease the retail space at Somerset Place Apartments. Located on the ground floor of one of Chicago's most dynamic apartment renovation projects, this opportunity provides retail tenants with high profile retail space beneath 160 ultra-luxury apartments in Uptown, one of Chicago's most popular and densely populated North side neighborhoods. Great space for retail, restaurant, or service retail tenants. Expansive sidewalk areas that are perfect for best in class sidewalk cafe dining. High visibility, retail space with flexible lease terms.
Lease Info:
■ Min divisible: 900 SF
■ Max contiguous: 3,628 SF
■ This property has 2 spaces available ranging from 809 SF to 5,263 SF.
Location Description:
High visibility retail space in a spectacularly renovated apartment building. Less than two blocks to the CTA's Argyle Red station and Chicago's lakefront. This is a must see building that is now the iconic historic renovation on the north side of Chicago. Join incredible neighboring restaurants such as Tweet, Big Chicks, Tank Noodle and La Ciudad. Plus, take advantage of the traffic generated by great entertainment venues like the Riviera Theater, Aragon and Green Mill.
Highlights:
■ Approx. 10,000 SF Available
■ Divisible to spaces ranging from 809-5263 SF
■ Ground Floor of 160 New Ultra-Luxury Apartments
■ Many Different Potential Layout Options
■ High Ceilings and Dynamic Streetscape Visibility
■ Existing Infrastructure For Restaurant Venting
■ Outdoor Seating Available
Pricing: $1.50/sqft
Availability: Now
Listing ID: 618489
Rate: $18 per sqft per year
Size: 3,628 square feet
Type: Retail Space
Learn More:






































