181,760 Square Foot Industrial Space For Lease @ 4300 W Roosevelt Rd
4300 W Roosevelt Rd, Chicago, IL 60624
To view listing contacts please sign in with your Pro account or create a pro account.
Matthew S.
Company: requires Pro account
Email: requires Pro account
Phone: requires Pro account
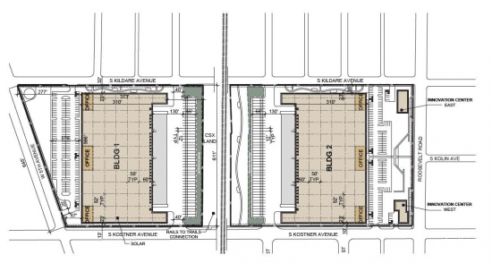
Building 2: 181,760 SF, office to suit, 36' clear, 27 exterior docks, 2 DIDs, 160 car parking, 43 trailer parking, Cook County 6B tax Enterprise Zone, Close proximity to I-290 and major highway systems
Office space(s): ---
Ceiling height: ---
Column space: ---
Has sprinklers: No
Power: ---
Loading Zone:
• Has rail access: No
Rate: Contact for price
Size: 181,760 square feet
Type: Industrial Space
Learn More:


