1,200 Square Foot Retail Space For Lease @ 324 S Halsted St - 320 S. Halsted Street
324 S Halsted St, Chicago, IL 60661
To view listing contacts please sign in with your Pro account or create a pro account.
Leo S.
Company: requires Pro account
Email: requires Pro account
Phone: requires Pro account
Highly visible West Loop/Greektown location (Van Buren & Halsted).
Adjacent to The Parthenon and other landmark restaurants.
Rapidly growing residential population in the immediate area.
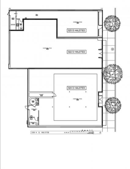
2,600 SF Unit is divisible.
Property includes adjacent parking lot.
Lease Info:
■ This property has 2 spaces available ranging from 1,200 SF to 2,600 SF.
Location Description:
Located in vibrant West Loop neighborhood
Highlights:
■ Highly visible West Loop/Greektown location (Van Buren & Halsted).
■ Adjacent to The Parthenon and other landmark restaurants.
■ Rapidly growing residential population in the immediate area.
■ 2,600 SF Unit 324 is divisible.
■ 1,200 SF Unit 320 store front has soaring 14' foot ceilings.
■ Property includes adjacent parking lot.
Pricing: $2.92/sqft
Availability: Now
Listing ID: 658432
Rate: $35 per sqft per year
Size: 1,200 square feet
Type: Retail Space
Learn More:




