105,000 Square Foot Industrial Space For Lease @ 2874 W Cermak Rd - 900 Cermak
2874 W Cermak Rd, Chicago, IL 60623
To view listing contacts please sign in with your Pro account or create a pro account.
Steven G.Recommended Pro
Company: requires Pro account
Email: requires Pro account
Phone: requires Pro account
Fantastic Chicago Arts District Loft Office, Showroom and Light Industrial Space
Immediate Access to 90-94, Loop, U of I Campus and Chicago Loop
High Ceilings with Sky Lights
Excellent Loading
Ample Onsite Parking
Attentive Management and Strong Ownership
Enterprise Zone
TIF District
Fantastic Chicago Arts District Loft Office, Showroom and Light Industrial Space
Immediate Access to 90-94, Loop, U of I Campus and Chicago Loop
High Ceilings with Sky Lights
Excellent Loading
Ample Onsite Parking
Attentive Management and Strong Ownership
Enterprise Zone
TIF District
Lease Info:
■ Min divisible: 4,700 SF
■ Max contiguous: 105,000 SF
■ This property has 2 spaces available ranging from 4,700 SF to 105,000 SF.
Location Description:
Conveniently located 2 blocks west of 90/94 at Cermak Road. In the heart of Chicago Arts District. Enterprise Zone.
Highlights:
■ Fantastic Chicago Arts District Loft Office, Showroom and Light Industrial Space
■ Immediate Access to 90-94, Loop, U of I Campus and Chicago Loop
■ High Ceilings with Sky Lights
■ Excellent Loading
■ Ample Onsite Parking
■ Attentive Management and Strong Ownership
■ Enterprise Zone
■ TIF District
■ Strong Ownership
Pricing: $0.58/sqft
Availability: Now
Listing ID: 386173
Office space(s): ---
Ceiling height: 8.0
Column space: ---
Has sprinklers: No
Power: ---
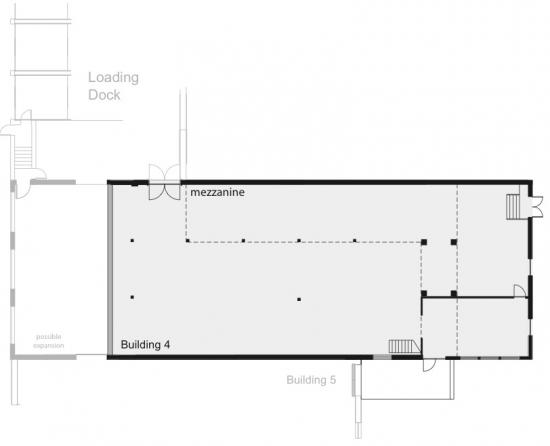
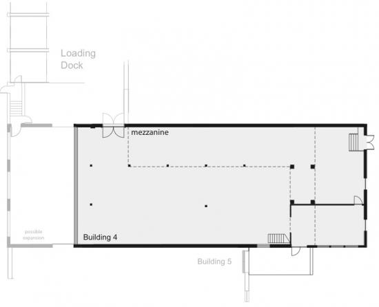
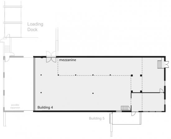
Loading Zone:
• Grade level: 2
• Dock doors: 7
• Has rail access: No
Rate: $7 per sqft per year
Size: 105,000 square feet
Type: Industrial Space
Learn More:


































































