Land Available For Sale @ Gateway Boulevard West
Gateway Boulevard West, Savannah, GA 31419
To view listing contacts please sign in with your Pro account or create a pro account.
Adam B.
Company: requires Pro account
Email: requires Pro account
Phone: requires Pro account
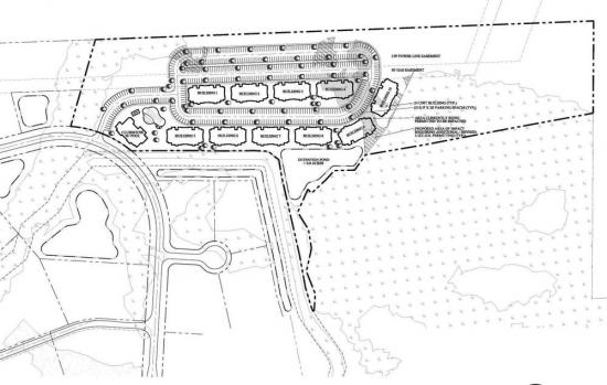
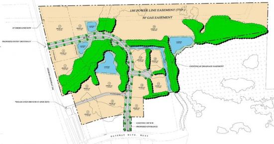
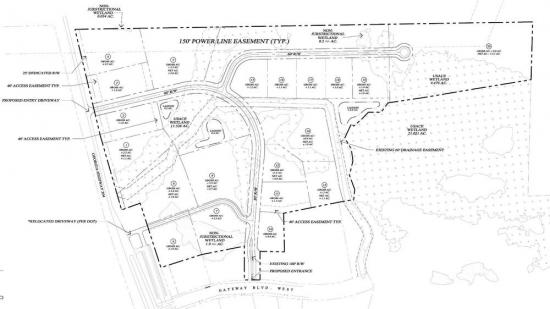
Offered for sale is +/- 61.70 undeveloped gross (+/- 44.74 upland acres) at the I-95 and GA Highway 204 interchange. The site includes extensive frontage along Hwy. 204, multiple access points and a curb cut on Gateway Boulevard West, directly across from Savannah Harley Davidson and the Hooters Restaurant. Zoned P-B-C, the land has the flexibility for a number of different uses. Included with the sale are multiple conceptual plans that provide numerous layouts for both commercial as well as multi-family developments. Owner financing is available.
Location Description:
The property is located at Exit 94 of the I-95 and GA Highway 204 in Savannah, GA. Known as Gateway, it is one of the busiest interchanges in Savannah and features 22 hotels, numerous national restaurant chains, Strayer University, the Henderson Golf Course community with residences, shopping at the Savannah Festival Outlet stores and future home of the Pirate?s Cove Water Park in Summer of 2011. As it flows directly to downtown, Hwy. 204 becomes Abercorn Street, an extremely dense retail corridor that experiences traffic counts of up to 55,000 vehicles per day. Abercorn Street connects residents and tourists with two regional malls, Hunter Army Air Field, 3 hospitals, established business and residential communities, the Historic District of Downtown and easy access to Savannah's islands and beaches.
Highlights:
■ Zoned P-B-C - Flexible - Conceptual Plans Included
■ Exit 94-22 Hotels, Food, Golf, Outlets, Water Park
■ Hwy. 204/Abercorn Flows to Historic Downtown
■ Owner Financing Available
Pricing: $3,100,000
Availability: Now
Listing ID: 480121
Sale Price: $3,100,000
Size: 2,687,652 square feet
Type: Land
Learn More:













