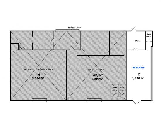
1,910 Square Foot Retail Space For Lease @ 2695 Capital Cir Ne - 2695 Capital Circle NE Unit C
2695 Capital Cir NE, Tallahassee, FL 32308
To view listing contacts please sign in with your Pro account or create a pro account.
Laurie B.
Company: requires Pro account
Email: requires Pro account
Phone: requires Pro account
This Property has great exposure and frontage on Capital Circle NE. Next to Gold's Gym and the new Go Performance Fitness near multiple major retail and restaurants. Property also has a high traffic count and easy traffic light access.
Location Description:
Located on Capital Circle NE at the intersection of CCNE & Lonnbladh Rd.
Highlights:
■ Great exposure and frontage on Capital Circle NE
■ Next to Gold's Gym and Go Performance Fitness.
■ High traffic count and easy traffic light access
■ Near multiple major retail and restaurants
Listing company: Sperry Van Ness Commercial Real Estate Advisors
Pricing: $1.33/sqft
Availability: Now
Listing ID: 620581
Rate: $16 per sqft per year
Size: 1,910 square feet
Type: Retail Space
Learn More:














































