Land Available For Sale @ Lot 14 Trinity Blvd.
Lot 14 Trinity Blvd., New Port Richey, FL 34655
To view listing contacts please sign in with your Pro account or create a pro account.
Dewey M.
Company: requires Pro account
Email: requires Pro account
Phone: requires Pro account
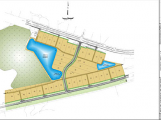
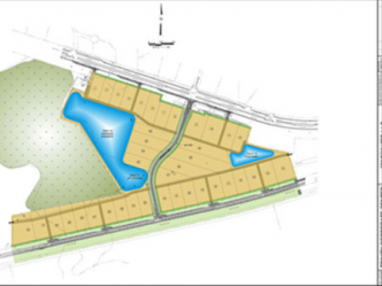
Trinity Corporate Center (TCC) is located on SR 54 in the heart of the Trinity Corridor. TCC will be one of Tampa Bay's premiere mixed-use developments. Containing 40 individual lots, TCC will have retail, office and light industrial uses. The retail uses will be along SR 54 and the office/light industrial uses will be located in the interior and the Trinity Blvd. sections of the development.
Horizontal development is under way and should be completed by November 2007.
Listing company: Berkshire Hathaway Homeservices Florida Properties Group - Trinity
Pricing: Contact for Pricing
Availability: Now
Listing ID: 399708



