Land Available For Sale @ 24603 State Road 54
24603 State Road 54, Lutz, FL 33559
To view listing contacts please sign in with your Pro account or create a pro account.
Renee' D.
Company: requires Pro account
Email: requires Pro account
Phone: requires Pro account
Simon Property Group, recently announced their newest venture, Tampa Premium Outlets, located at I-75 and SR 56, just .75± miles from the subject property. It has been given the official go-ahead from government planners, with an expected opening last quarter of 2015. Simon has planned 1.1± million SF for the mall.
The subject property is comprised of a total of 19.5± acres, zoned Agricultural and has a Future Land Use of Residential 3. The property holds a greenbelt tax designation at the present time.
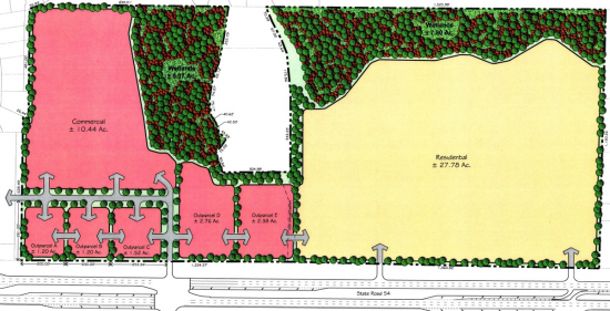
A proposed site plan is available, which provides outparcel frontage sites ranging from 1.2± acres to 5.14± acres and a larger interior parcel approximately 10.44± acres. There is an existing signalized light located at Oak Grove Blvd where the proposed site ingress/egress is planned.
In March 2011, Pasco County adopted a mobility fee to replace transportation impact fees. This fee directs growth away from the undeveloped areas of the County and toward the planned urban service areas like the SR 54 corridor by incentivizing certain types of development. This site is located within Urban Service Area- Map A.
Continual growth is expected in the area with the following planned residential and commercial developments: • Watergrass, East Side Bruce B Downs & SR 56 - 1,999± Units. • Ashley Glenn SR 54, East of Suncoast Parkway - 900± Units. • Longleaf Starkey Blvd. - 570± Units. • Maricopa Starkey Ranch - 50± Units. • Suncoast Crossings Commercial - 1.5± Million SF. • Starkey Ranch, Residential - 5,050± Units. • Starkey Ranch, Commercial - 750,000± SF & 220 Hotel units. • Enclave at Terra Bella SR 54 west of I75 - 253± Units. • North of Ashley Glenn- Newland Communities - 1,100± Units. • Trinity Lakes, Trinity Blvd. & SR 54 - 250 SF Units/300 Apartments. • Astoria (adjacent to South Branch Ranch) - 550± SF, 440± Apt, 200± MF, 200K± Commercial, 184K± Office, 350K± Industrial/Office.
Listing company: Berkshire Hathaway Homeservices Florida Properties Group - Trinity
Pricing: Contact for Pricing
Availability: Now
Listing ID: 603791


