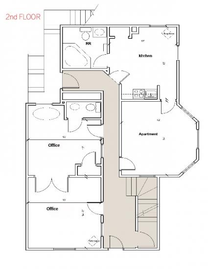
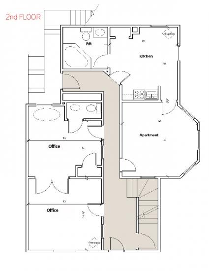
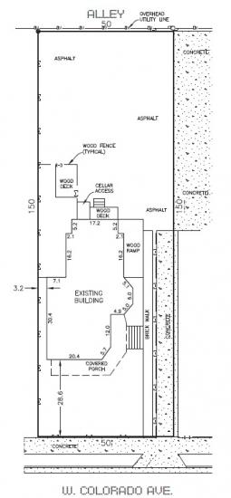
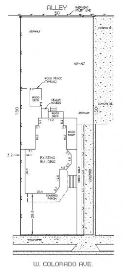
3,060 Square Foot Office Space For Sale @ 1318 W Colorado Ave
1318 W Colorado Ave, Colorado Springs, CO 80904
To view listing contacts please sign in with your Pro account or create a pro account.
Holly L.
Company: requires Pro account
Email: requires Pro account
Phone: requires Pro account
MAJOR PRICE REDUCTION: Now offered for sale at only $395,000. 1318 West Colorado Avenue is a highly desirable Victorian Era house located ½ way between the Downtown and the historic Old Colorado City shopping district. The 3,060 square feet 3 story property has previously been a chiropractor’s office, a bed & breakfast and multi-family. It is an ideal live-work situation on a major bike path thoroughfare. The property has previously undergone remodeling (some of the big stuff) and with a little ‘new-owner TLC’, it could be amazing. There’s a fully-paved parking area; property taxes are $4,582 and insurance is $1,893.
Location Description:
Colorado & 13th Street
Highlights:
■ High Visibility
■ High Traffic Counts
■ Quick access to 1-25
■ Great West Side Location
■ Perfect for retail or office user
Pricing: $395,000
Availability: Now
Listing ID: 686353
Sale Price: $395,000
Size: 3,060 square feet
Type: Office Space
Learn More:






































