133 Square Foot Office Space For Lease @ 2152 S Vineyard - Suite C
2152 S Vineyard, Mesa, AZ 85210
To view listing contacts please sign in with your Pro account or create a pro account.
Steve B.
Company: requires Pro account
Email: requires Pro account
Phone: requires Pro account
Window view
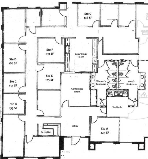
Beautifully renovated executives suites available for lease. Furnished or unfurnished available. All suites include shared use of reception and interior common area restrooms. Gorgeous landscaped exterior with grassy areas and pathways.
Lease Info:
■ This property has 6 spaces available ranging from 133 SF to 190 SF.
Location Description:
Located off Baseline and Country Club in Mesa. Within 1 mile of the US-60 and quick access to the 101-Price Freeway. Within minutes from the Maricopa County Southeast complex (Superior Court & County Sheriff).
Highlights:
■ Includes Shared Use of Reception and Interior Common Area Restrooms
■ Covered Parking Available; High Parking Ratios
■ Building Door & Lobby Signage Available
■ Within 1 Miles of the US-60 Superstition Freeway
Pricing: $3.38/sqft
Availability: Now
Listing ID: 641945
Rate: $41 per sqft per year
Size: 133 square feet
Type: Office Space
Learn More:













































