Jones Lang Lasalle Americas Inc
Company Website: https://www.rofo.com/commercial-real-estate/company/Jones-Lang-Lasalle-Americas-Inc/11815
You can narrow your search by zooming, panning, and clicking on the map above.
Showing 21 - 40 of 115 buildings with 140 total listings

13105 Eastpoint Park Blvd, Louisville, KY 40223
Suites ranging to 269,200 square feet.
Three parcels are available located on Eastpoint Park Boulevard with easy accedss to La Grange Road and I-265. Total plat is 6.18 acres but will...

12100-12200 Plantside Drive, Louisville, KY 40299
Suites range from 61,500 square feet to 95,832 square feet.
12100 Plantside Drive is an office building with a warehouse component. Built in 1996 located with immediate access to I-64 and convenient to...

7290 Manslick Rd, Louisville, KY 40214
Suites ranging to 4,130 square feet.
Property has the possibility of being 3 units.

11101 Plantside Dr, Louisville, KY 40299
Suites ranging to 55,321 square feet.
Rare opportunity to purchase 1.27 acre tract in Bluegrass Industrial Park with Plantside Drive frontage.

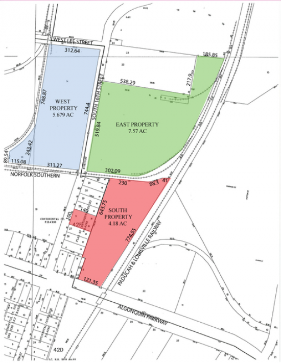
1933 S 16th St, Louisville, KY 40210
Suites ranging to 329,749 square feet.
East Property: Plant Shed-16,000SF, 16' clear height; Cruciform Building-22,848SF, 33'-50' clear height, 1-12' x 12' & 1-10' x 12' drive-in doors;...

1947 S 16th St, Louisville, KY 40210
Suites ranging to 182,080 square feet.
South Property industrial lot that includes a 6,000SF metal building with one 12' x 12' and one 10' x 10' drive-in doors and a 5,350SF crossdock...

Hwy 55 and Brunerstown Rd., Shelbyville, KY 40065
Suites range from 589,366 square feet to 4,051,080 square feet.
Prime commercial devlopment land, at Exit 32 B om I-64, Hwy 55 north. Once on Hwy 55 north, take immediate left onto Old Brunerstown Rd., then...

8916 Cane Run Rd, Louisville, KY 40258
Suites range from 972,694 square feet to 1,163,487 square feet.
Cleared, level land with a new entrance for tractor-trailers, rare M-3 heavy industrial zoning, 1,165.95' of Ohio River frontage, possible CSX...

214 Breckenridge Ln, Louisville, KY 40207
Well located St. Matthews office building.

7707 National Tpke, Louisville, KY 40214
Opportunity to own a flex building in airport submarket. Building amenities include; 13,000 SF office area; dock and drive-in loading; fluorescent...

4340 Security Parkway, New Albany, IN 47150
Rolling 3.09 acre Grant Line Business Park Lot 9 with all utilities and sewers near I-265 and Indiana University Southeast priced at $65,000.00...

51 Harvest Dr, Elizabethtown, KY 42701
1998 Constructed - (2) Two Warehouse/Distribution Building Property on +/- 19 acres close to I-65 Interchange featuring the following: #1-99,000sf...

11400 Interchange Dr, Louisville, KY 40229
Class A distribution facility located in Commerce Crossings. Building features include: 28' clear height; cross dock design; ESFR sprinkler;...

1200 Bridgeport Dr, Jeffersonville, IN 47130
Level 9.489 acre Bridgeport Business Park Lot 14 with all utilities and sewers near I-265, the new East End bridge, Clark Maritime Centre, River...

1213 Bridgeport Dr, Jeffersonville, IN 47130
Rolling 2.243 acre Bridgeport Business Park Lot 15 with all utilities and sewers near I-265, the new East End bridge, Clark Maritime Centre,...

1218 Bridgeport Dr, Jeffersonville, IN 47130
Rolling 6.416 acre Bridgeport Business Park Lot 16 with all utilities and sewers near I-265, the new East End bridge, Clark Maritime Centre,...

1222 Bridgeport Dr, Jeffersonville, IN 47130
Rolling 3.222 acre Bridgeport Business Park Lot 17 near the new East End Bridge, Port of Indiana - Jeffersonville, River Ridge Commerce Center,...

1248 Bridgeport Dr, Jeffersonville, IN 47130
Rolling 6.536 acre Bridgeport Business Park Lot 18 with all utilities and sewers near I-265, the new East End Bridge, Clark Maritime Centre,...

140 Rochester Dr, Louisville, KY 40214
Industrial Building offered near Airport featuring: 35' clear Height, 4 docks, 2 drive in doors, 4 Bridge Cranes, Compressed Air, Heavy Electric...

160 Rochester Dr, Louisville, KY 40214
New 160,000sf cross dock designed warehouse near Louisivlle International Airport featuring: (20) twenty 9'x10' equipped Dock Doors(expandable),...
| 1 2 3 4 5 6 |