ABBOTT PROPERTIES
You can narrow your search by zooming, panning, and clicking on the map above.
Showing 261 - 280 of 293 buildings with 57 total listings

413 Knight St, Warwick, RI 02886
This property was an office many years. It has been gutted and can be rebuilt or taken down for the right use. Will build to suit for right use....

42 Greco Lane, Warwick, RI 02886
Initially was an industrial use building converted to a day care center. Can be used for many uses.

61 Gilbane St, Warwick, RI 02886

627 Warwick Ave, Warwick, RI 02888
great office space, features large open area. One private office with wet bar. Ready for cubicles. All utilities included!

633-637, Pawtucket, RI 02860
CORNER PROSPECT AND BEVERAGE HILL STS. AMPLE CAR +PARKING FENCED YARD,MANY POSSIBLE USES FROM LIGHT IND. TO SERVICE WORK SHOP, RETAIL. CONTAINER...

635 Arnold Rd, Coventry, RI 02816

656 Providence St, West Warwick, RI 02893
Busy traffic , street retail , good for many uses.
715-739 Warwick Ave/atlantic Ave Corner, Warwick, RI 02888
Great location for bank, credit union. 4 way lighted corner , across from CVS, Wendy's and Auto Zone.

815 Oaklawn Ave, Cranston, RI 02920
Clean , neat and functional. 2 small suites to pick from. Take a look and get your work out of the house. Different configurations available.

892 Oaklawn Ave, Cranston, RI 02920
This great looking building is located where all the action is. The unit total sf is 2155 but is easily separated to either accommodate a 963'...

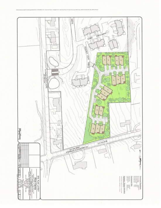
Wakefield St, West Warwick, RI 02893
This property is ideal for a 15 unit condo development. See proposed plan attached. Needs approval. Adjacent to River Farms Condos

281 Centerville Rd, Warwick, RI 02886
Suites ranging to 60,115 square feet.
All approvals in place for a 10,600sf 2 story building. Make an offer!

57 Veterans Memorial Dr, Warwick, RI 02886
Originally was Pawtucket Savings Bank, Most recently a Wave Credit Union.( they have a new facility about 1 mile away.). Property has 3 drive...

257 Centerville Rd, Warwick, RI 02886
OPPORTUNITY KNOCKS!! MULTI FAMILY ON CENTERVILLE RD WILL MAKE A GREAT HOME OR COMMERCIAL INVESTMENT. MOMENTS AWAY FROM HGWY ACCESS, SHOPPING,...

121 Waldo St, Providence, RI 02907
Suites ranging to 2,930 square feet.
Contractor space of1900sf and offices totaling 1030 sf. Gas heat and central A/C in offices.
1497 Post Rd, Warwick, RI 02888
Long standing business, turn key , owner retiring. Owner will disclose numbers to serious buyers only.
2650 Warwick Ave, Warwick, RI 02889
Well maintained construction office and garage / fenced yard for vehicle storage.
215 Tollgate Road, Warwick, RI 02886
Suites ranging to 1,680 square feet.
Nice Doctors office. Waiting room , storage, open bullpin, 4 exam rooms and Doctors office, and private bathroom. Unit on 2nd floor , serviced...
659 Sandy Lane, Warwick, RI 02889
Suites ranging to 4,795 square feet.
This building was taken down to the studs in 1992. Has been used as a photography studio and offices ever since. This is an elebant property...
417 Douglas Pike, Smithfield, RI 02917
Suites ranging to 22,278 square feet.
Multi use industrial building. about a mile from Rt 295. About 3500sf office . Lease also or option. $4.25psf NNN
| ... 6 7 8 9 10 11 12 13 14 15 |